Social Media Sites
News
Sign-up

Powerful CAD/CAM software for door, window and furniture construction

A partner for your success

More than 25 years of experience in CAD/CAM software

About COBUS NCAD
purchaseboxheaderimage
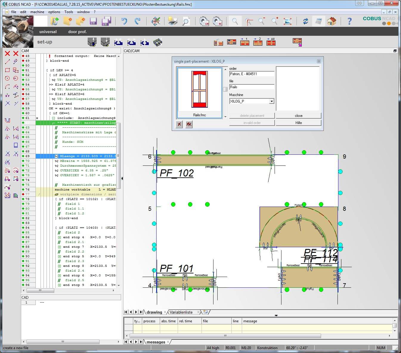
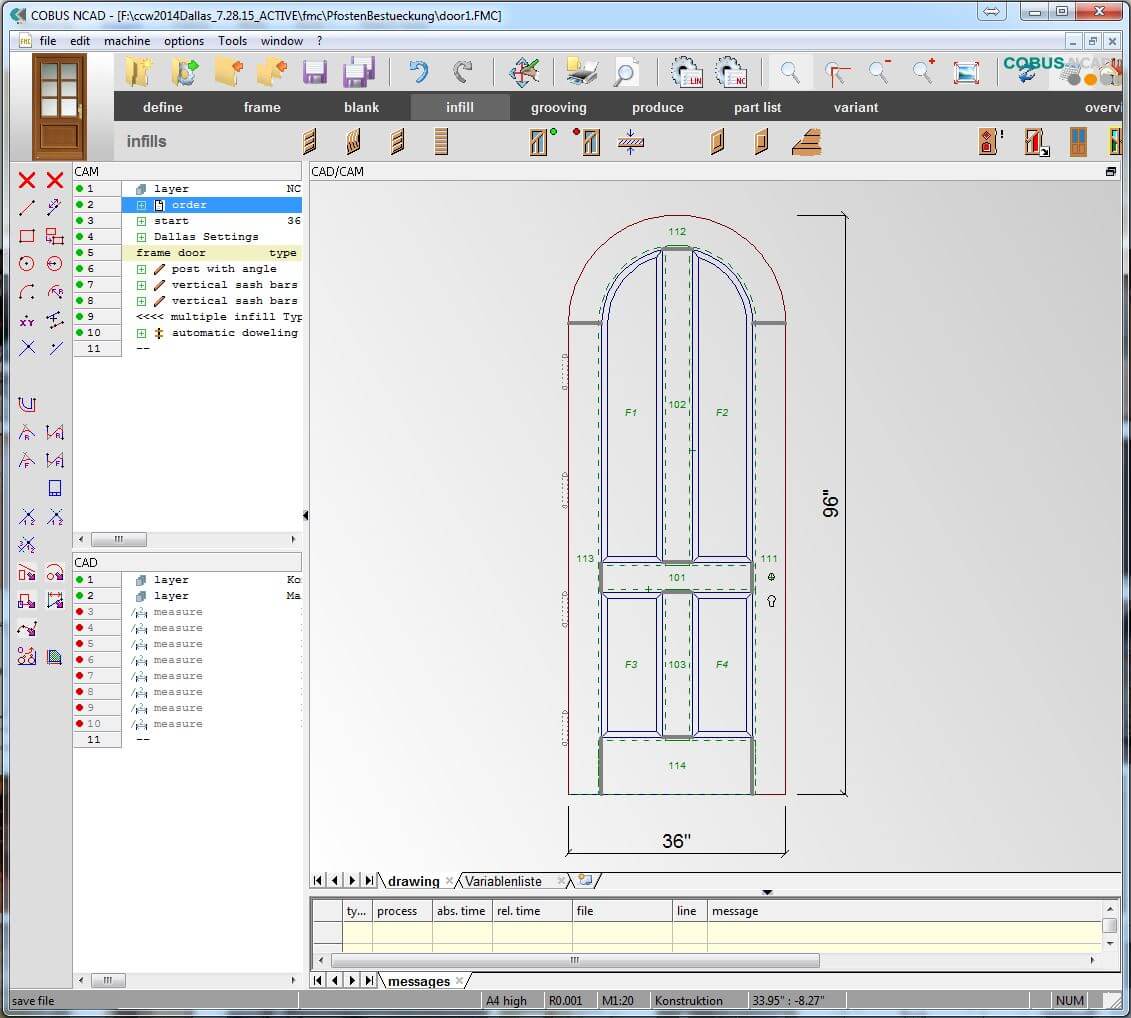
A solution that has withstood the test of time, COBUS NCAD is a powerful CAD/CAM software solution that has all the features you will need for your CNC programming requirements. Simply put if you can imagine it, then with COBUS NCAD, you can build it too. Also incorporating some of the most powerful parametric programming functionality in the industry, existing drawings can be reworked in seconds and sent to production. And COBUS NCAD is machine neutral, it can link to every machine on the marketregardless of the make and brand, so there is no need to learn how to code or work in multiple software interfaces. Industry specific modules, with NCAD as the foundation but specifically made to handle the requirements of door and window production, are also available.
Benefits:
- Comprehensive but easy to use CAD/CAM design interface
- High level of programming flexibility to create parametric, modifiable templates
- 1 software communicates machine instructions to all CNCs at the manufacturing location
- Machine neutral: Post Processors available for every make and model of CNC
- Out of the box customization: Use the software as is or tailor it to your needs
- Macros add functionality: Create your own machining processes, i.e. custom corner clean outs and pockets
- Mutliple add-on modules available to enhance functionality
- Industry tested and approved: 25+ years

See features here See Add-On options here
  • CAM Functionality
    CAM Functionality

    CAM Functionality

    Control every process and aspect of machining: Drilling, milling, sawing, creating pockets. For each process, control the lead ins/outs, tool compensations, feedrates, # of steps, machine stops and zero point offsets just to name a few

  • Industry specific solutions
    Industry specific solutions

    Industry specific solutions

    Modules specifically designed for the requirements and challenges of door and window construction

COBUS NCAD At a glance
NCAD at a glance
  • Automated CNC generation
    Automated CNC generation

    Automated CNC generation

    Automate the creation of CNC files based off of a partslist with variables (mail merge for CNCs!)

  • Timed 3D simulations
    Timed 3D simulations

    Timed 3D simulations

    Accurate 3D machining simulations help to visualize and time processes to reduce the need for unproductive test runs

  • Link to Machines
    Link to Machines

    Link to Machines

    Postprocessors for all machine types are available

Click the button below to get a rundown on just a small sample of the many interesting features available in COBUS NCAD.
See videos of COBUS NCAD.
- Demos
- Tutorials
- Etc.
Peruse the available online literature for COBUS NCAD. Such as:
- Promotional Leaflets